Coromandel Valley

4 Kestrel Place

Welcome home to Coromandel Valley

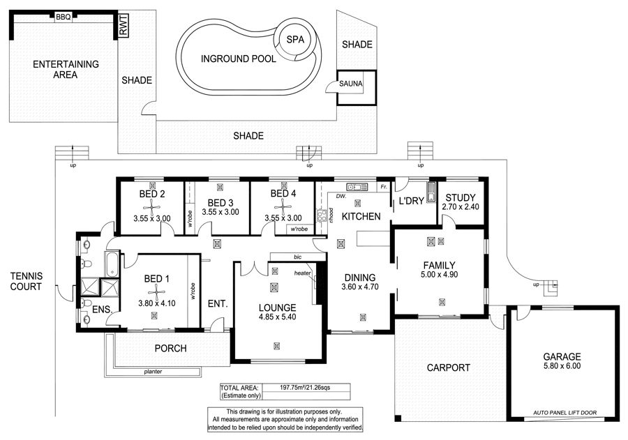
Located in a quiet cul-de-sac in the heart of leafy Coromandel Valley, this large home offers resort style facilities that will suit the whole family. Featuring 4 spacious bedrooms, 2 living areas, large family kitchen, 2 updated bathrooms, separate study, double garage plus double carport, swimming pool & sauna and a tennis court!

Situated on a very spacious 2442sqm block (approx.) this property has so much room for the family to enjoy. Make the most of the recent renovations that have taken place including roof renovations, interior painting and new flooring in the bedrooms.

The home features a wide entry hallway with great natural light, a spacious and light master bedroom with built in wardrobes and ensuite plus three bedrooms with new floating floors (two with built-in-robes).

Also featuring a study, large family room with sliding doors leading into an open plan dining area to the kitchen.

The updated kitchen features a Westinghouse Range hood, 900mm Oven, Electric Stove, new dishwasher with plenty of storage and bench space galore.


Outside you'll love:

• In-ground swimming pool and sauna
• Full sized fully-fenced tennis court with flood lights
• Large undercover entertaining area


And there's more:
• Ducted R/C Air-Conditioning throughout
• Ducted Evaporative cooling system
• Electric fireplace in lounge room
• Security Alarm System
• Speaker system in Rumpus Room
• Parquetry flooring in hallways & meals area
• Double Garage with automatic roller door
• Double Carport to store the extra vehicles, trailer or boat

Blackwood shopping precinct only minutes away, Westfield Marion Shopping Centre just 15 minutes and a variety of schools including Blackwood High School, Coromandel Valley Primary School, Hawthorndene Primary School and Eden Hills Primary School all on your doorstep.

Sold

4
2
4

Property Features

  • Property ID
    19042025
  • Building Size
    198 sqm
  • Building Age
    1968
  • Remote Garage

Contact

Share