Tusmore

18 Hyde Street

Resplendent C1936 Tudor with big things to come on the brink of Tusmore's best...

Oozing the charm that makes Tusmore so tightly held, this C1936 Gentleman's Tudor takes its robust and imposing original home and says, 'I've got big plans for you' on its rare parcel of some 1138sqm.

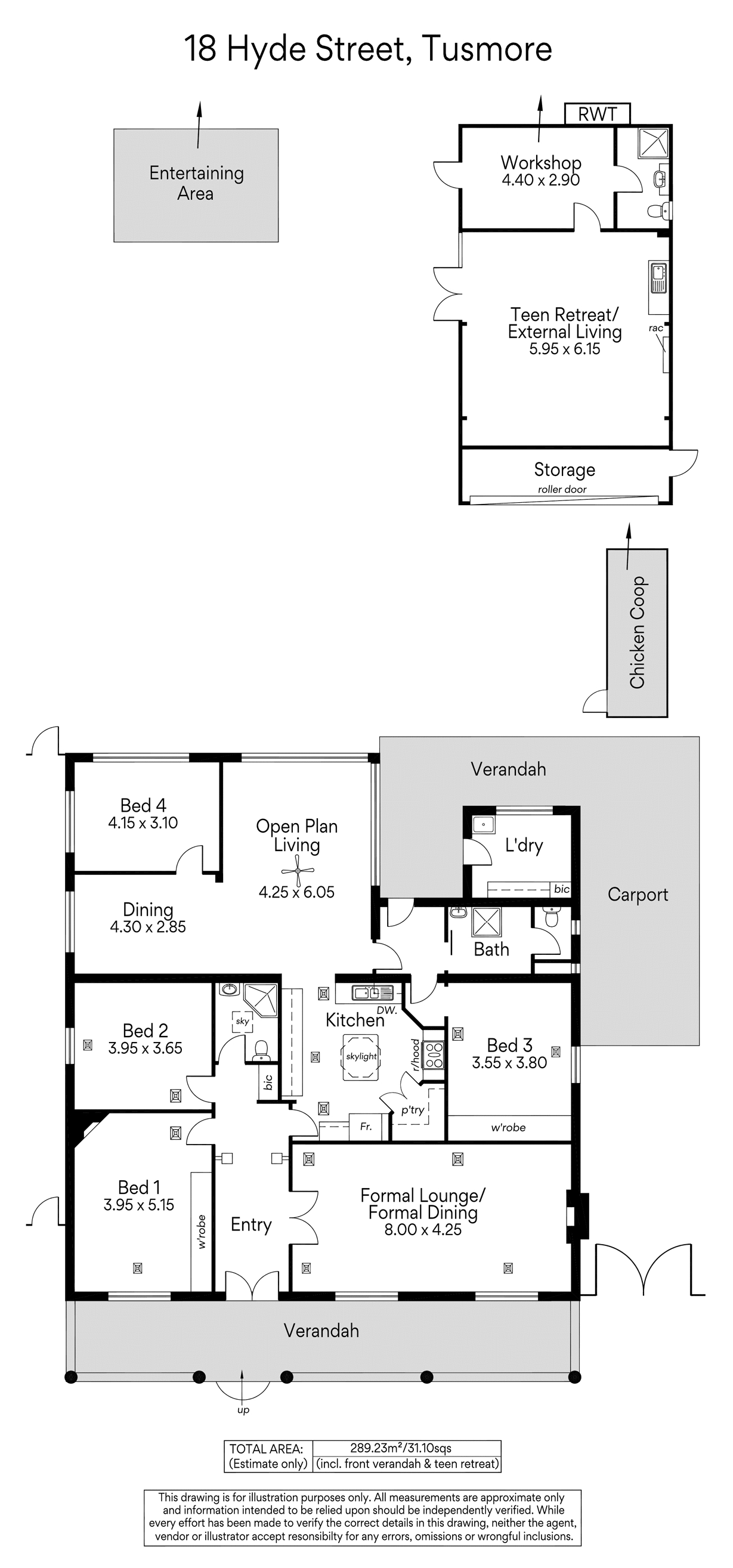
If the plan is to settle down in a spacious, ultra-flexible and light-drenched home with four bedrooms, multiple living zones and a large separate self-contained studio, then simply place your furniture and press play on this enviable lifestyle, just a short stroll from Burnside Village.

But when you see just how much space you have to play with in a rear yard with workshop, chicken coup, productive veggie gardens and 34 fruit trees to go with that studio, it's hard not to think bigger.

The current owners have approved plans in place for a contemporary extension with open-plan living, two bedrooms, alfresco pavilion and a second kitchen. Food for thought.

Whether you use the plans to the exact specifications, tweak them to your liking or simply use them for inspiration, the hard work of those before you might save you a lot of time and potential expense in the future.

And what a bright future it is when this imposing home - featuring jarrah floors, soaring ceilings and a gorgeous updated kitchen - stands squarely in the fiercely sought-after zone for Marryatville High and Linden Park Primary Schools. It's time to make those big plans.

More to love:

- Ideally placed on a quiet street opposite Burnside's iconic Ballroom and Library
- Just metres from Burnside Village and public transport
- Off-street parking for at least four cars
- Recently updated ducted evaporative cooling and gas heating systems
- Flexible floorplan with grand formal lounge room and rear family room addition
- Large central kitchen with granite benchtops, 900mm Ilve freestanding oven/gas cooktop and bundles of storage
- Large separate studio with kitchenette, split R/C and bathroom
- Workshop and lock-up storage adjacent to studio
- Gas hot water
- Established, neatly presented gardens to front and rear
- Secure rear yard, perfect for kids and pets
- Just a short drive from the heart of Norwood and the city's East End
- Close to Burnside Swimming Centre
- And much more.

Sold

5
3
2

Property Features

  • Property ID
    19169655
  • Carports
  • Land Size
    1138 sqm

Contact

Share