Meadows

54 Mawson Road

From shop to cottage on a corner block, there's more to this Meadows piece of history near Hahndorf...

What began its life as council chambers, became a saddlery, and was recently an antiques shop could be anything your heart desires on a prized corner block with a stone laden cottage to its rear and three frontages on the doorstep of Meadows' local primary school and charming conveniences...

Welcome to your very own piece of Hills history on the cusp of Hahndorf...with a shop front, separate 2-3-bedroom dwelling and infinite potential scenarios, just 40 minutes from the CBD.

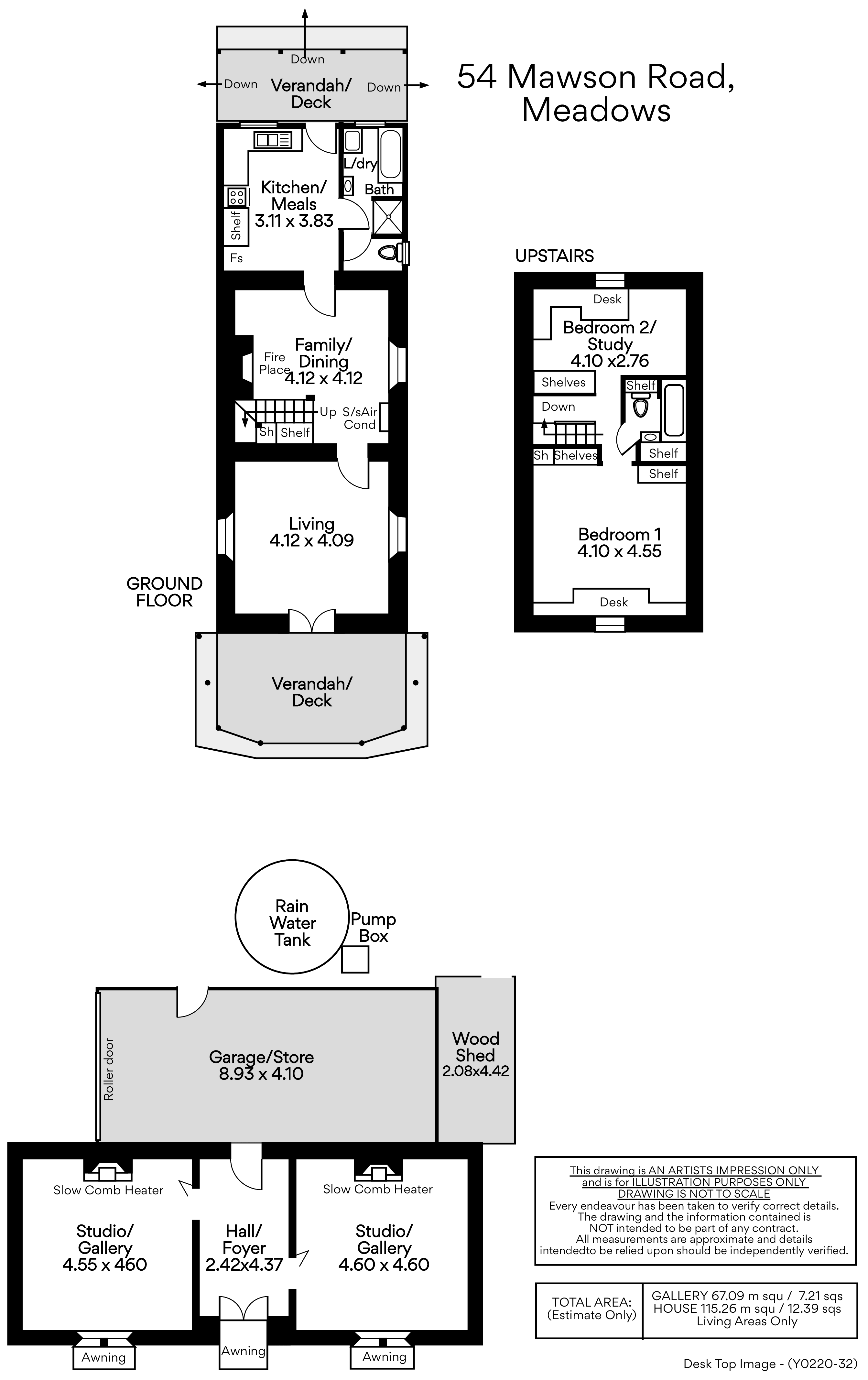
As the story goes, the C1890s church-like cottage - with two bedrooms on its second level, and the option for a third on a self-contained ground floor -preceded the 1914-built two-roomed shop facing Meadows' main boulevard.

Today - with the help of some preliminary plans - the shop could (with council consent) be converted into one very charismatic 'bed and breakfast'. It would be as easy as lining the shop's large rear shed, then adding a kitchenette and bathroom.

Of course, you could leave the shop - and its beautiful mix of pine and Jarrah floors, lofty decorative ceilings, fireplaces and bundles of natural light - for a local business that will reduce your mortgage while you go quietly about your own business out the back...

Draped in local stone and fronted by a covered timber decked patio, the rear dwelling - with central lounge room, two bathrooms, air-conditioning, open fireplace and a kitchen - oozes the same old-world charm as the shop...minus the street exposure, and passing traffic.

And so the best of all (and old) worlds combine to make this a story with many twists and turns. The best yet to come.

More reasons why we love this home:

- Quiet, yet just metres from local bakeries/cafes and Meadows Primary School
- Preliminary plans drawn for 'bed and breakfast' subject to council consent
- Three frontages allows easy access to the property
- Bore
- Low-maintenance grounds with onsite parking for multiple cars
- Just a 10-minute drive from Hahndorf
- Original fireplaces and ornate features to shop and cottage
- Baltic pine floors to cottage
- Plenty of storage to cottage and large shed
- Excellent shop front exposure with passing traffic to Victor Harbor, southern beaches and Fleurieu Peninsula
- Close to local cafes, shops and bakery
- Lifestyle living and a popular equestrian area
- And so many more.

Sold

3
2
2

Property Features

  • Property ID
    20428949
  • Land Size
    573 sqm

Contact

Share